DURAMATE™ ADA
The Duramate™ ADA is a wheelchair-accessible privacy booth that is accessible for everyone. This pod is designed for private video conferencing for virtual court hearings, visitations, and telehealth appointments to be accessible to anyone.
Get A Quote → Book A Demo Get Spec Sheet

QUIETFLOW™ VENTILATION
Our proprietary airflow system is designed to
keep cool, by quietly circulating the air into the
booth, while maintaining acoustical privacy.

FIRESHIELD™ SYSTEM
FireShield™ (Patent Pending) is an optional heat-activated fire suppression system, ensuring fire code compliance while maintaining modularity for easy relocation

TAMPER RESISTANT
Correctional grade security design, with minimum exposed bolts, & security fasteners for all exposed bolts.

UL 962 CERTIFIED
Duramate™ is UL 962 certified, which means it has undergone rigorous testing to ensure its stability, mechanical strength, and fire resistance. This certification also includes extensive electrical testing of the power distribution units and lighting, guaranteeing compliance with all relevant electrical codes and acceptance by local jurisdictions.
In addition to the UL 962 certification, Duramate™ holds UL 94 and ASTM 84 Flammability certifications, providing an extra layer of assurance regarding its safety.
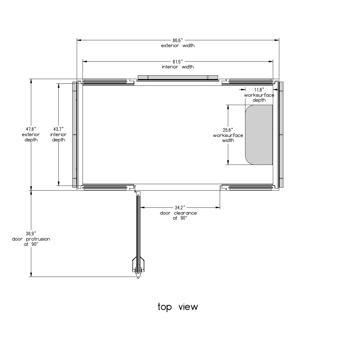
GENERAL SPECIFICATIONS
Dimensions: 85”W x 85”H x 48”D
Weight: Approx. 1,000 lbs
Acoustical Rating: 40-45 Decibel reduction
CONSTRUCTION
Frame: Correctional powder coated steel structural frame
Windows: Unbreakable polycarbonate, 2H scratch resistance, UL 94 v-0 flammability
Soundproofing: Durafelt™ (correctional grade, rip, scratch, & tear resistant, ASTM E84 flammability)
Door: 36” wide, left hand or right handed. Non removable hinges steel encasement with polycarbonate window, acoustical sealed with gasket, latching handle (optional locking handle
Side Panels: Removable HPL plywood panels with security bolts.
Countertop: Heavy duty powder coated steel frame bolted to main frame. Locking access door with 2 cam locks. Concealed power/data outlets inside. Optional sitting or standing height.
POWER & DATA
Voltage: 110-120 volts
Amps: 2-3amps
Plug and Play: Power cord C13 8ft standard (3ft-10ft cord available)
Hardwired: Optional
LED LIGHTING
Type: 2 LED lights
Color Temperature: Adjustable between 3,000K-5,000K
Tamper Resistant: Polycarbonate security covers


3D Virtual Tour
BRAND PROMISE
Tuffshield™ Assurance
3 year overall warranty
(see warranty statement for
full details and any exclusions).
Made In USA
Our products are made to order to your exact requirements. Manufactured in Maryland with globally sourced materials.
#manufacturedinusa
#madeinusa
Durafelt™ Acoustics
Correctional, rip, scratch & impact
resistant. Free replacement panels
for lifetime of product.




















