Skip to Content

DURAMATE™ SINGLE

The Duramate™ Single is a compact, private video conferencing for virtual court hearings, visitations, and telehealth. Perfect for fitting into any space with ease.


Duramate Single - QuietFlow Ventilation

QUIETFLOW™ VENTILATION

Our proprietary airflow system is designed to keep cool, by quietly circulating the air into the booth, while maintaining acoustical privacy.​


Duramate Single - FireShield Fire Suppression

FIRESHIELD™ SYSTEM

​FireShield™ (Patent Pending) is an optional heat-activated fire suppression system, ensuring fire code compliance while maintaining modularity for easy relocation


Tamper Resistant Design -Duramate Privacy Pods

TAMPER​ RESISTANT

Correctional grade security design, with minimum exposed bolts, & security fasteners for all exposed bolts.

UL 962 CERTIFIED

Duramate™ is UL 962 certified, which means it has undergone rigorous testing to ensure its stability, mechanical strength, and fire resistance. This certification also includes extensive electrical testing of the power distribution units and lighting, guaranteeing compliance with all relevant electrical codes and acceptance by local jurisdictions.




In addition to the UL 962 certification, Duramate™ holds UL 94 and ASTM 84 Flammability certifications, providing an extra layer of assurance regarding its safety.

GENERAL SPECIFICATIONS

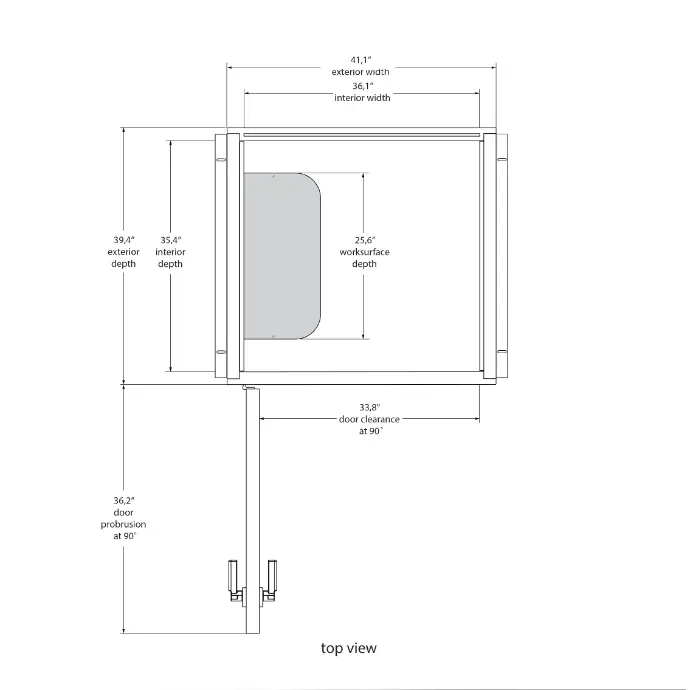
Dimensions: 41”W x 85”H x 41”D

Weight: 500-600 lbs

Acoustical Rating: 40-45 Decibel reduction


CONSTRUCTION

Frame: Correctional powder coated steel structural frame 

Windows: Unbreakable polycarbonate, 2H scratch resistance, UL 94 v-0 flammability

Soundproofing: Durafelt (correctional grade, rip, scratch, & tear resistant, ASTM E84 flammability)

Door: 36” wide, left hand or right handed. Non removable hinges steel encasement with polycarbonate window, acoustical sealed with gasket, latching handle (optional locking handle

Side Panels:  Removable HPL plywood panels with security bolts.

Countertop: Heavy duty powder coated steel frame bolted to main frame. Locking access door with 2 cam locks. Concealed power/data outlets inside. Optional sitting or standing height.


POWER & DATA

Voltage: 110-120 volts 

Amps: 2-3amps 

Plug and Play: Power cord C13 8ft standard (3ft-10ft cord available)

Hardwired: Optional


LED LIGHTING

Type: 2 LED lights

Color Temperature: Adjustable between 3,000K-5,000K 

Tamper Resistant: Polycarbonate security covers

Duramate Single Technical Drawing - Front View

Duramate Single Technical Drawing - Side View


Duramate Single Technical Drawing - Top View

Duramate Single Technical Drawing - Rear View

3D Virtual Tour

Contact Us

VIDEO OPTIONS

Whether you need a standalone booth for tablet-based video meetings or a fully integrated TV enclosure with a protected screen and mini PC, we have the perfect option. Our video options are designed to work on any platform:


Duramate Video Options


Duramate Prison Grade Privacy Booth Video Options - Tablet

Correctional Handheld Tablet

Duramate Correctional Grade Privacy Booth - Video Kiosk
TV Enclosure w/ Micro PC


BRAND PROMISE

TuffShield Assurance - Duramate Promise

Tuffshield™ Assurance

3 year overall warranty (see warranty statement for full details and any exclusions).

Duramate Correctional Grade Privacy Pods - Made In America

Made In USA

Our products are made to order to your exact requirements.  Manufactured in Maryland with globally sourced materials.

#manufacturedinusa
#madeinusa

Durafelt Acoustics

Durafelt™ Acoustics

Correctional, rip, scratch & impact resistant. Free replacement panels for lifetime of product.

CONTACT



 
By filling out this form, you agree to receive SMS messages from SPACEWORX related to installation inquiries and follow-ups, and employee communication. You may reply STOP to opt out at any time. Reply HELP or call 866-895-6044 for assistance. Messages and data rates may apply. Message  frequency will vary. Learn more on our  Privacy Policy  and  Term & Conditions.

Protected by reCAPTCHA,  Privacy Policy &  Terms of Service apply.

Thank You For Your Feedback

Our team will message you back as soon as possible.
In the meantime we invite you to visit our website.